Home
307RE
Albany County Wyoming Area Real Estate

Main navigation

  • Welcome
  • Commercial For Sale
  • Commercial Leases
  • Residential Leases
  • Contact Form

Laramie Building with Restaurant & Multiuse Units For Sale in Downtown Area

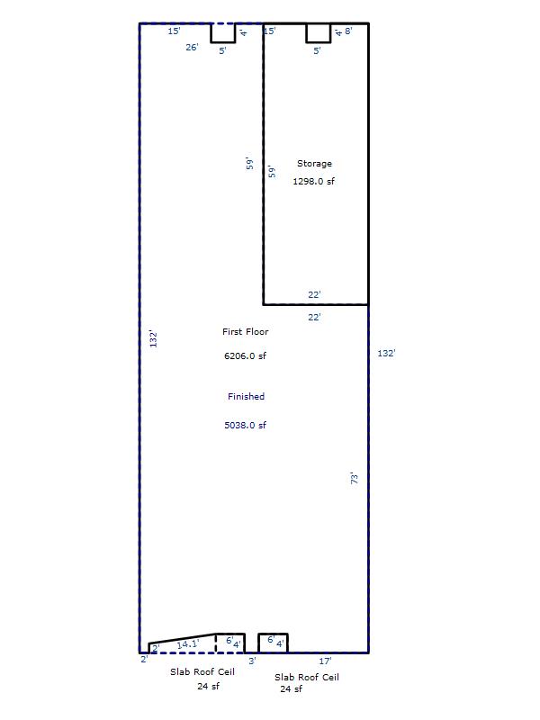
Commercial building consisting of a 7,300 SF restaurant (street level) unit and a 4,200 SF multi-use (below grade) unit in the heart of the Laramie historic downtown area. It is located on US highway 287 (3rd St.) and on business highway US 80 with excellent exposure to high volume traffic (17,430 daily count) .  The building is one block from the Laramie city buildings and two blocks from the Albany County building complex, and is within walking distance of a number of public facilities and churches. It is located just a few blocks west of the University of Wyoming campus.  There is a free public bus shuttle route that is within 1 block of the property.

Within Qualified Opportunity Zone!

Click the links below for information for the two units:

 Restaurant (street level) unit

 Multi-use (below grade) unit 

For additional information, please use the Contact Form. 

 

12672
6,336 SF

DC (downtown commercial)

Building layout (22.17 KB)
Vicinity map (475.35 KB)
Permitted Use Table (see DC zone)
207 S. 3rd Street (US highway 287)
$875.000, terms possible with qualified buyer

INFORMATION CONTAINED HEREIN, WHILE NOT GUARANTEED, IS FROM SOURCES WE BELIEVE TO BE RELIABLE. PRICES, TERMS AND INFORMATION SUBJECT TO CHANGE.

Breadcrumb

  • Home
  • Laramie Building with Restaurant & Multiuse Units For Sale in Downtown Area

Copyright © 2026 Inferential Technology Inc. - All rights reserved

Developed & Designed by Inferential Technology Inc.